Architectural Plan & Services
The Architectural Plan & Services By Smart Cities UAE
At Smart Cities UAE, offering our clients an architectural plan that aligns with their property needs, vision, and budget is our company’s priority. Our Architecture & Planning Group in Dubai holds specialization while delivering detailed architectural drawing plans and building architectural plans that do not break the law of UAE policy but count as one of the appealing buildings of the United Arab Emirates.
Whether it’s a modern villa, a commercial facility, or a landscape architecture park design plan, we serve all types of construction projects with the creativity and accuracy of our tools and expertise. We prepare initial drafts and blueprints, plus we offer approvals while assisting clients with every process until finalization.
Key Features of Our Architectural Services
- Tailor-made building architectural plans for villas, commercial & industrial projects
- Created by our Architecture & Planning Group Dubai
- Advanced architecture drawing plans with modern CAD and BIM software models
- Sophisticated 3D architectural floor plans and virtual tours
- Compliance with construction, MEP services and safety prerequisites in the UAE
- Specialized landscape architecture park design plans for public and private parks
Our Architectural Expertise
At Smart Cities UAE, we dedicatedly bring design innovation and technical precision together in our work. Here, we will showcase the works of our Architecture & Planning Group Dubai, including custom architectural, 3D floor plans, and landscape designs.
From Concept to Blueprint
Based on your concepts, we will construct your vision as detailed architecture in order to establish clear guidelines for implementation. Plan designs are ideal combinations of design aesthetics and usable layouts.
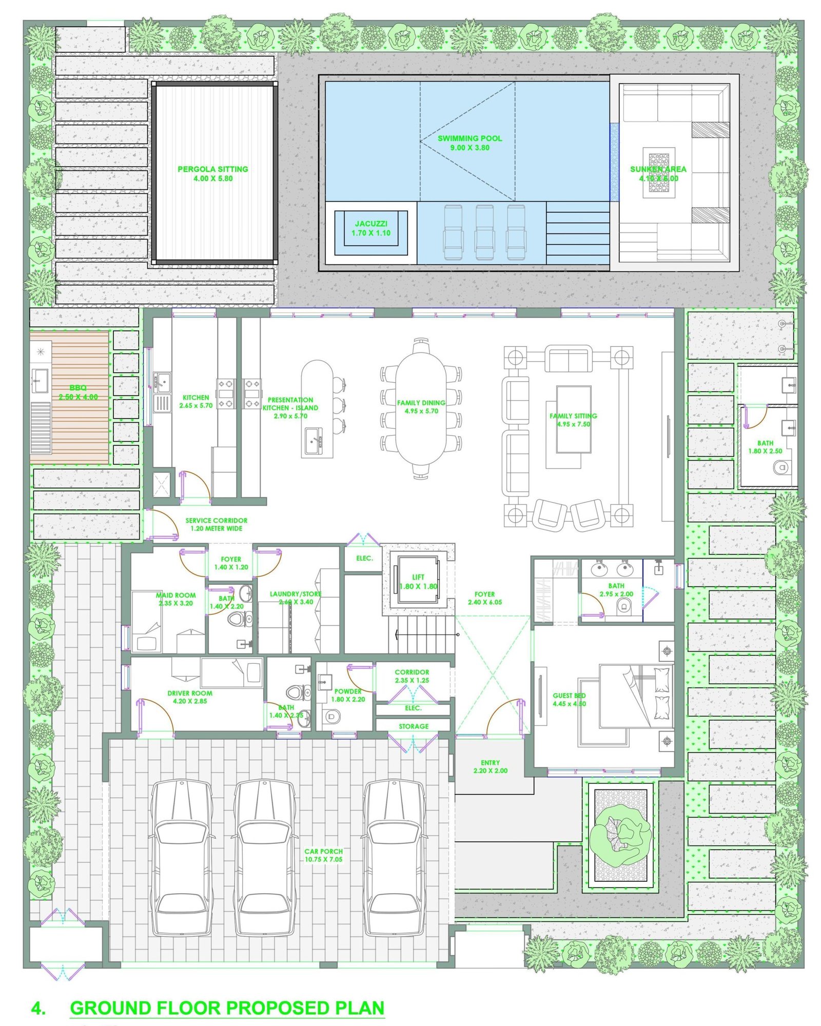
3D Architectural Floor Plans
We provide high-end 3D architectural floor plans that give you a visual feeling of your future place. This immersive design enables informed decisions to be made before construction even starts.
Architecture Group Integrated
Our in-house architecture and planning team brings extensive experience to every project, ensuring innovative design, practical feasibility, and full compliance at every stage of development.
Specialized Landscape Design
Landscape architecture park design plans serve to enhance outdoor space beauty while creating functional environments suitable for residential estates and public facilities.
Our Architectural Plan Portfolio in UAE
Our company presents an array of architectural planning services throughout the cities in the UAE. Our architectural designs showcase both creativity and precision as they implement the highest standards associated with Smart Cities UAE and demonstrate innovative building concepts together with precise floor layout renderings and landscape-planning park designs.
TESTIMONIALS
What Our Clients Are Saying
See what our partners and clients think about Smart Cities UAE. From businesses to city planners, they share how our smart solutions are making a real difference. We’re proud to help build better, more connected cities in the UAE!
Pyae Sone2025-02-11Trustindex verifies that the original source of the review is Google. Efficient and professional . Love how they handle projects. Would recommend M.mohammed Rafi2024-12-07Trustindex verifies that the original source of the review is Google. Great hooman abdali2023-12-01Trustindex verifies that the original source of the review is Google. I am architect and this company have done too many projects for me as well as clients asked for. Wish you luck MOHAMMAD ASIF2023-11-30Trustindex verifies that the original source of the review is Google. They are best honestly Ali Hasnain Khan2023-11-30Trustindex verifies that the original source of the review is Google. I give five stars to Engineering Services Jahir Uddin Mohammad Babar2023-11-25Trustindex verifies that the original source of the review is Google. Smart Cities Contracting is one of best construction company in Dubai, There is management is friendly, Thanks Alsaddat gillani trust2023-02-06Trustindex verifies that the original source of the review is Google. Nice place i visit it
Building Dreams, Together.
By Clicking, You agree to our Terms & Conditions,
Privacy and Data Protection Policy
Frequently Asked Questions
Our architectural group supplies total architecture drawing plans with the services of 3D floor planning and construction documentation in addition to regulatory approval consulting.
Our company specializes in offering comprehensive services for building architectural plans and landscape design plans, which include residential villa plans and landscape architecture park design plans.
Absolutely! Before starting construction, our architectural floor plans provide precise 3D visualizations of your future structure.
Everything related to landscaping, pool design, or another architectural service can be handled through info@smartcitiesuae.com.
The Smart Cities UAE holds two different but active contact numbers, +971 55 908 9747 or +971 52 714 1919, these assist our clients in reaching out and asking for preferable guides
Warehouse No. 9 operates as our head office at Opposite Reef Operations Warehouse within Ind. #4 of Al Quoz district in Dubai UAE.